Building and control solution in detail

Building and control solution in detail

To investigate how different ventilation and cooling systems affect energy performance and environmental impact, we made detailed calculations in IDA ICE (ESBO) using a fictitious office property. The analysis compares constant flow, variable flow and demand controlled systems as well as airborne and waterborne cooling. The result clearly shows how the choice of system affects both operational energy consumption and carbon dioxide emissions.

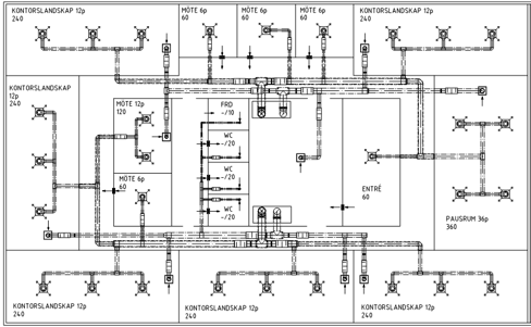
Building in Detail

Office: New construction, 5,500 m2, 4 storeys, Stockholm.
Heating: District heating, radiators.
Cooling: Water-cooled chiller.
Air handling unit: 2 pcs.
Window: U=0.7, G=0.3, internal solar shielding.
Office times: 6:00 a.m.-7:00 p.m., Mon-Fri (unit operating time).

​Occupancy​

  • Office: 90% - occupant load 50%.
  • Conference room: 50% - occupant load 75%.

Airflows

  • Airborne: 10-25 l/s per person.
  • Waterborne: 10 l/s per person.

Setpoints

  • Supply air: Outdoor compensated supply air regulation.
  • Room: Cooling 24C°/heating 22C°.
Control Solutions in Detail

Constant flow

  • Constant flow in all rooms (except conference rooms with airborne cooling*).
  • Room regulators are connected to the DUC for monitoring.

Variable flow

  • Variable flow in offices, conference and lunch rooms.
  • The airflow is regulated between minimum and maximum flow.
  • The room controller regulates heating, cooling and air quality and is connected to the DUC for monitoring.

Demand controlled

  • Demand controlled airflow in offices, conference and lunch rooms.
  • The airflow is regulated between minimum, occupancy and maximum flow.
  • Wireless communication (WISE) monitors and regulates heating, cooling and air quality.

*To meet the Swedish National Board of Housing, Building and Planning’s requirements for new construction (primary energy value 70 kWh/sqm year), conference rooms need variable flow.

Databases and sources

Energy cost

  • Average cost in 2023.
  • Electricity: EUROSTAT.
  • District heating: average value from five Swedish suppliers.

CO2 emissions

  • Electricity: Carbon Footprint LTD (www.carbonfootprint.com).
  • District heating: Värmemarknadskommittén [The Heating Market Committee] (VMK)​.​

Other sources

Want to find out more?

At Swegon, we take our responsibility for reducing greenhouse gas emissions seriously. Through our energy-efficient solutions for heating, cooling and ventilation, we help to reduce building operating-related carbon dioxide emissions – thereby contributing to a more sustainable future.

Contact us